Casas Modulares

Contenedor Planta Libre Oficina

Espacios Multipropósito


Diseñamos plantas libres ideales para depósitos, talleres o proyectos a medida. Una solución versátil que le brinda la estructura perfecta para comenzar a trabajar de inmediato, adaptándose 100% a sus necesidades.

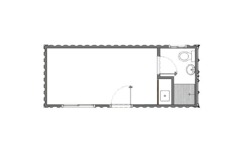
Contenedor Vivienda Baño y Cocina

Módulos Habitacionales


La solución completa para vivienda. Estas unidades están equipadas con baño completo (incluye ducha) y kitchenette integrada. Confortables y listos para habitar, ideales para casas de campo o ampliaciones.

Diseño Arquitectónico Contenedores

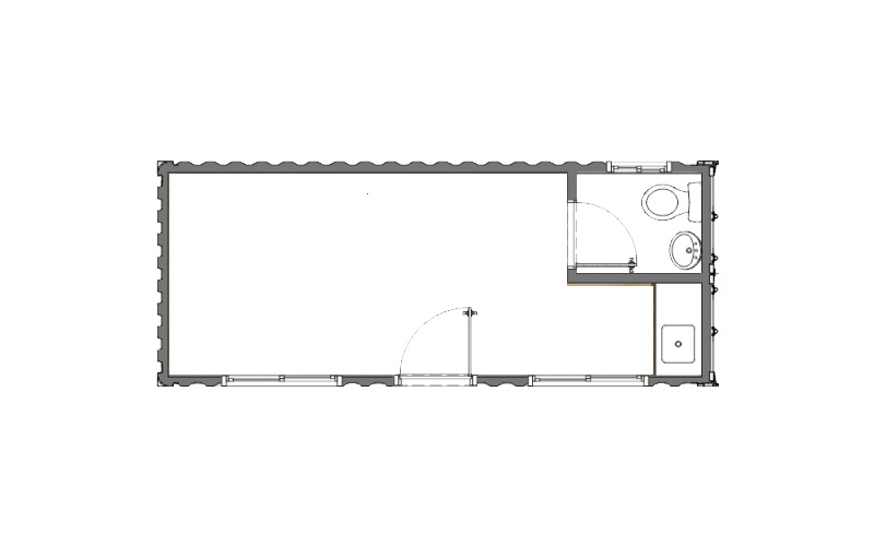
Oficinas con Servicios


Espacios optimizados para el ámbito laboral o comercial. Cuentan con baño y kitchenette, ofreciendo las comodidades esenciales para su equipo de trabajo o atención al cliente, maximizando la funcionalidad.

Casas Modulares | Campizal

Contacto

Todo nuestro equipo a su disposición.

Sin costo para usted, tenemos respuestas que lo ayudarán a tomar las decisiones correctas.